All Agents

5 Bedroom House For Sale

Warwick Drive, Hale, WA15

Guide Price, £1,895,000


5 5 5
  • Features Modern Detached
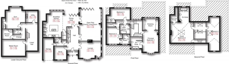
  • Features 4800 Sqft
  • Features Five Bedrooms, Five Bathrooms
  • Features Amazing Location
  • Features Converted Cellar With High Ceilings
  • Features Home Gym
  • Features Home Cinema
  • Features South Facing Garden
  • Features Gated Driveway
  • Features Open Plan Kitchen





Arrange a viewing

or call: Hale: 0161 928 9355 or Stockport: 0161 480 0099

Modern five bed, five bath detached home (4,800 sq ft) with open plan kitchen, home office, gym, cinema, gated drive, south facing, sought after location. No chain. Step inside this beautiful modern detached home, offering an impressive 4,800 square feet of living space in a truly amazing location. With five spacious bedrooms and bathrooms, there’s plenty of room for everyone to enjoy their own space and privacy. The heart of the house is the open plan kitchen, perfect for cooking and entertaining, which has double doors leading into a large lounge. The ground floor also benefits from a home office and separate living room. The lower ground floor has high ceilings and creates a fantastic space for a home gym and a dedicated home cinema, so you can work out or wind down without ever leaving the house. The gated driveway adds extra security and convenience, while the south facing aspect fills the home with natural light all day long. If you are looking for a modern detached property in a sought after location, then look no further. No Chain.
Floorplan for Warwick Drive, Hale, WA15
EPC Graph for Warwick Drive, Hale, WA15
Hibbert Homes

Need to sell
your property

Arrange a free valuation with one of our branches.

Book a Valuation