All Agents

5 Bedroom House For Sale

Harrop Road, Hale, WA15

Guide Price, £5,500,000


5 6 7
  • Features Swimming Pool & Spa
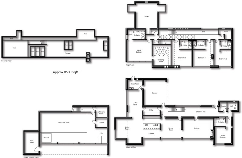
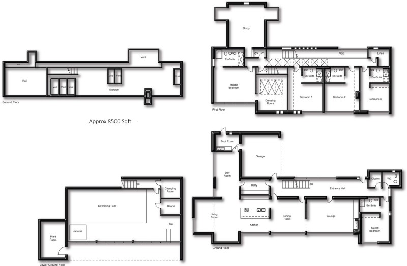
  • Features 8500 Sqft
  • Features Just Under an Acre
  • Features Modern Day Architecture
  • Features Double Garage
  • Features Secure Parking
  • Features Five Bedroom Suites
  • Features Great Location
  • Features Low Maintenance and Energy Efficient





Arrange a viewing

or call: Hale: 0161 928 9355 or Stockport: 0161 480 0099

Iconic 8500sqft. five bedroom detached home with open-plan living space, leisure suite, pool, gym, landscaped gardens, terrace, double garage, and walking distance to Hale Altrincham. Welcome to this Iconic five bedroom detached house, designed with modern day architecture and offering an impressive 8,500 square feet of living space. Each bedroom is its own suite, giving everyone plenty of privacy and comfort. The open-plan layout means you get an abundance of natural light, views of the garden and a real sense of space, while clever design touches make this home ideal for family living.
There is a stylish leisure suite to the lower ground floor including large pool, jacuzzi, sauna, gym and bar. With direct access to the garden this is perfect for entertaining.

Step outside and you are greeted by just under an acre of beautifully landscaped gardens with play area, lawn, vegetable garden and entertaining terrace with outdoor kitchen. To the front of the property is a large, private, and secure driveway with parking for ample cars and a double garage.

This is one of the best properties the area has to offer providing low maintenance living with exceptional energy efficacy. Its location is perfect, being moments walk from Hale village, Altrincham town centre and all the local amenities the area has to offer.
Floorplan for Harrop Road, Hale, WA15
Hibbert Homes

Need to sell
your property

Arrange a free valuation with one of our branches.

Book a Valuation